4 Beds 2 Baths Approx 716 Square metres 2 car spaces

Description

Love your life on Luderman

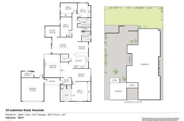
35 Luderman Road, Noranda presents a superbly functional family home where space, light and lifestyle come together with ease. Designed for modern living, the well-considered floorplan offers multiple living and entertaining zones alongside two separate bedroom wings, giving families the perfect balance of togetherness and privacy. Immaculately maintained and filled with natural light, this home feels welcoming from the moment you step inside.
The renovated kitchen is both stylish and practical, finished in crisp white tones and equipped with clever storage solutions including soft-closing drawers and smart corner cabinetry. It connects effortlessly to the main living zone, which in turn flows outdoors to a paved, undercover alfresco creating an ideal setup for entertaining in every season.

The main bedroom is privately positioned and enjoys a tranquil outlook over the lush, north-facing garden, offering a calming retreat at the end of the day. Minor bedrooms are generously sized, easily accommodating double beds, and all include built-in robes.

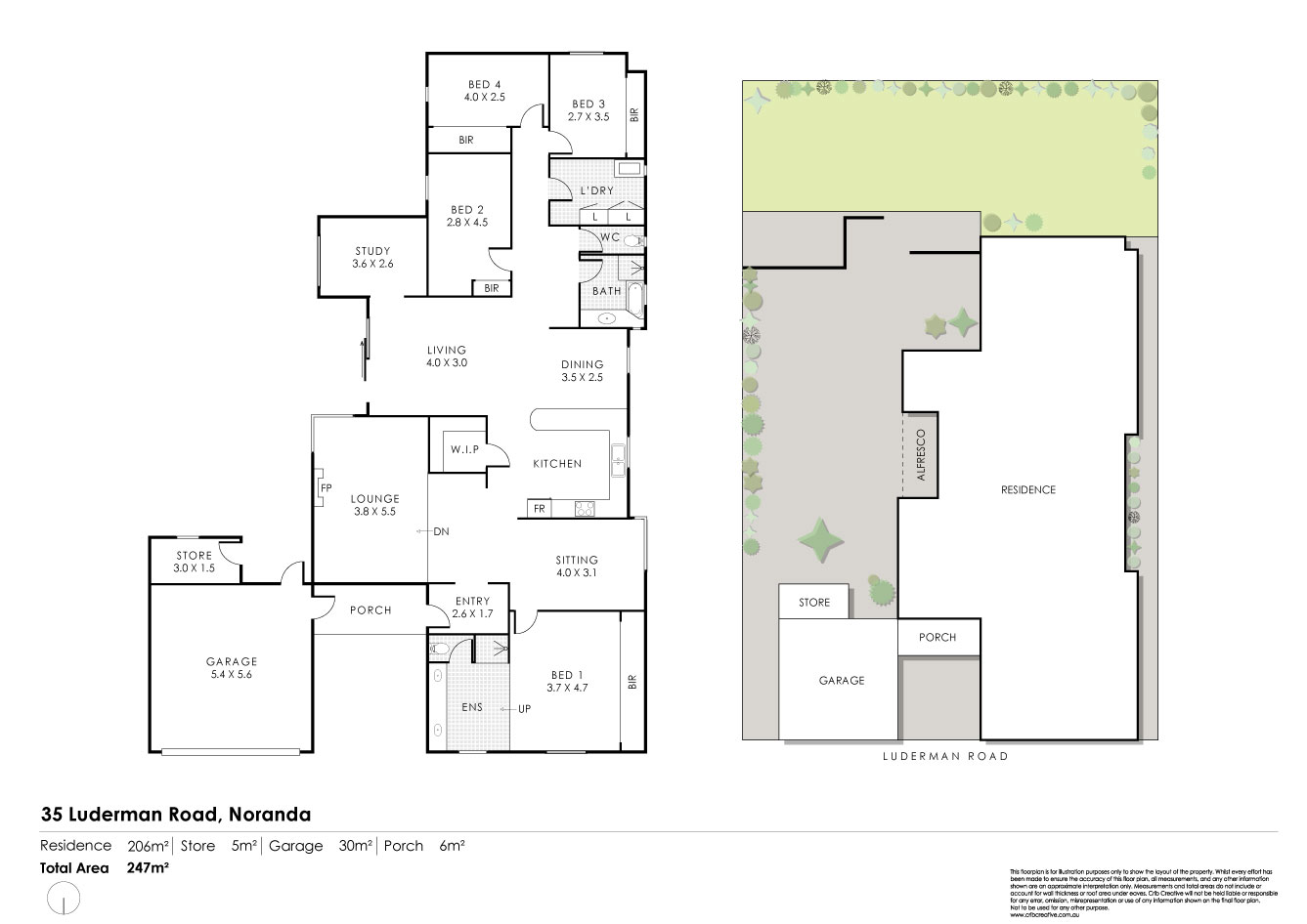
Outside, the low-maintenance backyard offers the perfect mix of paved and grassed areas, space for kids, pets, backyard cricket and relaxed outdoor living.

Positioned in one of Noranda’s most established and family-friendly pockets, the location is just as appealing as the home itself. Peaceful surroundings blend with everyday convenience, with schools, Luderman Park & playground, shopping facilities and a bus stop with direct access to the new Noranda train station all within easy reach.

A home that delivers comfort, functionality and an outstanding location — ideal for growing families and buyers who simply love room to live and entertain.

Appealing Features include:
- Blackbutt Timber Floors
- Ducted reverse cycle air conditioning
- Bore reticulated gardens
- Electric window shutters installed
- Security Cameras
- Security Alarm

Shire: City of Bayswater
Council Rates: $2189.33 approx. per annum
Water: $1355.35 approx. per annum
Block size: 716 sqm (R20/R40)

Heating & Cooling

  • Reverse Cycle Air Conditioning

Outdoor Features

  • Outdoor Entertainment Area
  • Remote Garage
  • Secure Parking

Indoor Features

  • Alarm System
  • Built-in Wardrobes
  • Dishwasher
  • Study

Location

2017 - 2026 | EQ Realty , All Rights Reserved | Privacy Policy. Powered by Eagle Software