4 Beds 3 Baths 2 car spaces

Description

Room to Grow, Space to Breathe — Parkside Family Living

Built in 2018 and set in a quiet enclave on the Dianella border, adjacent to Nederpelt Reserve, 45 Callaghan Way, Noranda offers an enviable lifestyle location paired with exceptional space and a lifestyle kids (and parents) will love.

This supersized double storey home boasts extra-large room proportions and high ceilings, creating an immediate sense of openness and space.

FIRST HOME OPEN Sunday 18th January at 12 noon and Tuesday 20th Jan with all offers presented by 5pm Sunday 28th January 2026. First in best dressed. The seller reserves the right to cancel a home open and accept an offer prior to this date without notice

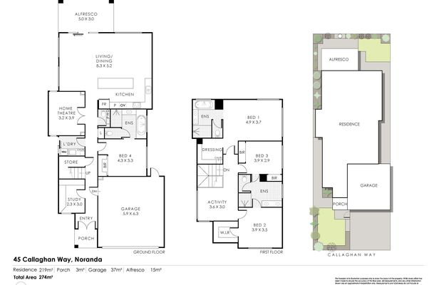
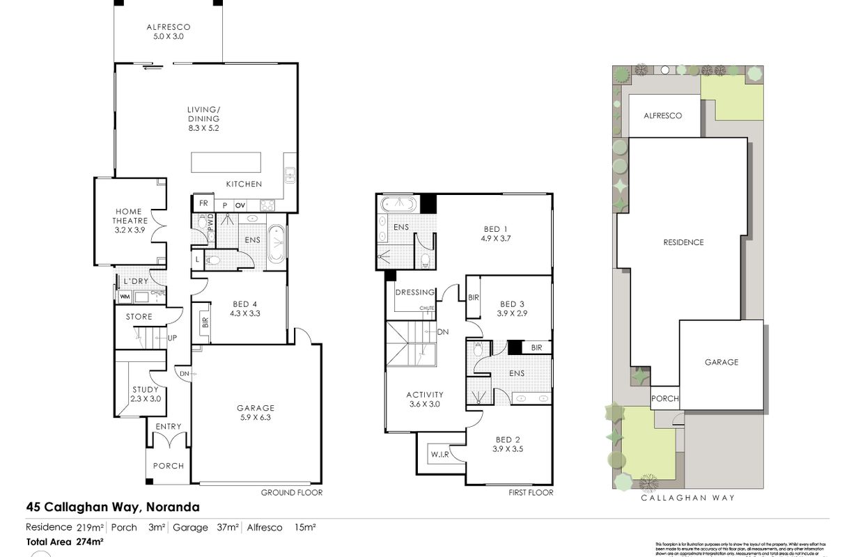
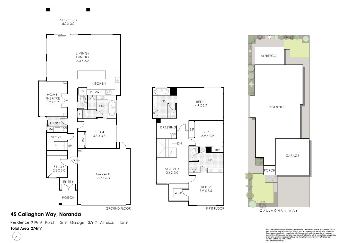
The thoughtfully designed well zoned floorplan comprises four bedrooms plus a separate study, along with two generous living areas, one upstairs and one downstairs, ideal for busy family life, homework zones, movie nights or giving teenagers their own retreat.

A ground-floor bedroom with ensuite is perfect for guests, older children, grandparents, or as a future main bedroom option.

While the home will benefit from a full repaint, this presents a wonderful opportunity for families to add their own colours, style and personality, and truly make the home their own, without compromising on space, layout or location.

For those seeking parkside living, quiet surrounds and a substantial modern home that supports everyday living now and into the future and ready to reflect your personal taste…this is an opportunity not to be missed.

At a glance….

1. Ducted reverse cycle air-conditioning throughout
2. Stone benchtops with open plan kitchen
3. Covered outdoor entertaining
4. Low maintenance garden front and back
5. Private and secured

Some distances

650m to Noranda IGA and Mazzy’s café
3.3 kms to the $240 million redevelopment of Morley Galleria
1.12kms to St Andrews Grammar and under a km to North Morley Primary and High
500 meters to public transport
8 kms to Inglewood café strip
12kms to Perth CBD

Heating & Cooling

  • Reverse Cycle Air Conditioning

Outdoor Features

  • Outdoor Entertainment Area
  • Remote Garage

Indoor Features

  • Built-in Wardrobes
  • Dishwasher

Location

2017 - 2026 | EQ Realty , All Rights Reserved | Privacy Policy. Powered by Eagle Software