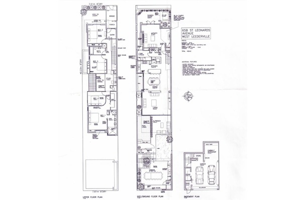
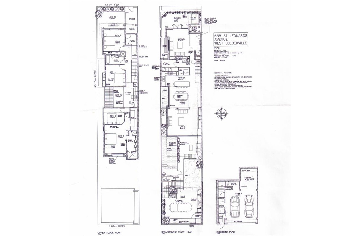
| 4 Beds | 2 Baths | Approx 308 Square metres | 5 car spaces |
Quality, functionality and luxury all in one ... and with 420 sqm of internal living, you will love the space!
Built and designed by architect John Lewis, this home maximises light and space. The high glass walls and windows allow the natural light to stream inside and from the moment you step inside you will feel the energy that flows throughout.
Enjoy the sanctuary of your private retreat and take in the view of the pool and entertaining area while you are sitting in the living room or cooking in the kitchen.
The two main living areas are situated downstairs, along with the kitchen, laundry, outdoor alfresco kitchen, two courtyards, pool and three car lock-up garage.
The master bedroom upstairs will impress with generous space, high ceilings, walk-in robe and a en-suite with a double open shower.
The three remaining bedrooms will not disappoint in size either and have ample wardrobe space and quality carpets.
Whether you are a family looking for a inner city home with luxury and convenience or a business couple , who travel and need a low maintenance lock and leave home this is your chance to live the life you love on the best Street in West Leederville . Like a diamond that shines bright during the day and even brighter at night.
Did I mention it was also across the road from the famous Piccolos Corner cafe?
With access to the freeways, walking distance to the West Leederville Primary School ,Coles, Post Office, Flower markets, Snap fitness and much, much more this property will excite you.
Extra features include:
- Ducted Air-conditioning and Vacuum System
- Security & Intercom System
- Study Nook
- Polished Floor Boards
- Heated Swimming Pool
- Fully Equipped Alfresco Kitchen
Call Renae (0403 063900) now to make a time for your private viewing :)


